50 % de lots réservés !
Voir les lots restants
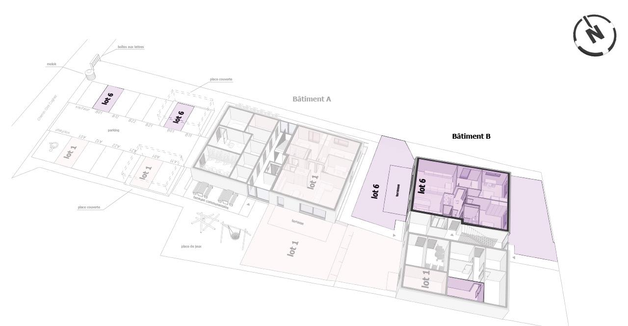
DéCOUVREZ CE PROJET de 2 immeubles à mathod
Avec un chantier en cours de démarrage," Les Clos Cugnez" à Mathod proposent 2 immeubles de 5 appartements, soit 10 logements dans une petite PPE, avec des appartements de 3.5 à 4.5 pièces, idéaux pour un premier achat ou pour investisseurs. Chaque unité dispose d’une terrasse d’un jardin privatif ou balcon et de finitions de qualité. Situés à proximité des axes autoroutiers, ces logements allient calme, verdure et accessibilité.
Aussi, le projet bénéficie des dernières modernités constructives et notamment :
- Triple vitrage.
- Balcon / Terrasse
- Isolation très haute performance
- Type de construction Minergie
- Situation calme entouré de verdure
- Chauffage par pellets de bois avec distribution de chaleur par le sol.

De 77 à 102 m2
A partir de 3.5 pièces

Situation calme,
entouré de verdure

Chauffage par pellets de bois
avec distribution de chaleur par le sol

Projet de haute qualité
environnementale

Triple vitrage

Livraison
printemps 2026
ETAT D'AVANCEMENT
Vous êtes là
Vous êtes là
Vous êtes là
Vous êtes là
Vous êtes là
Vous êtes là
le charme intemporel de MATHOD, qui préserve fièrement son espritde village paisible.
Vivre en campagne à quelques minutes seulement de la ville, c’est ce que le projet des Clos Cugnez vous propose. Mathod est un village pittoresque du district du Jura-Nord vaudois, offrant un cadre de vie paisible et agréable. Situé dans le canton de Vaud, ce village bénéficie de paysages magnifiques et d’un environnement rural idéal pour ceux qui recherchent la tranquillité tout en restant proches des commodités urbaines. Proche des axes autoroutiers, le village se situe à mi-chemin des villes d'Yverdon-les-Bains et d'Orbe.
Idéalement placée, la commune de situe aux alentours des commodités et des transports :
- Épicerie à 80 m
- Restaurant à 230 m
- Boulangerie à 160 m
- 5 km des supermarchés (Orbe)
- 7 km de l'hôpital d’Yverdon-les-Bains
- 8 km de la gare d’Yverdon-les-Bains
- 36 km de Lausanne
- 84 km de Genève-Aéroport

(Château de Mathod) - © APRTS – Florian Bloesch















